Gefunden auf ImmoBucket
Weiter zu Immoscout24
1020 ·
Wien
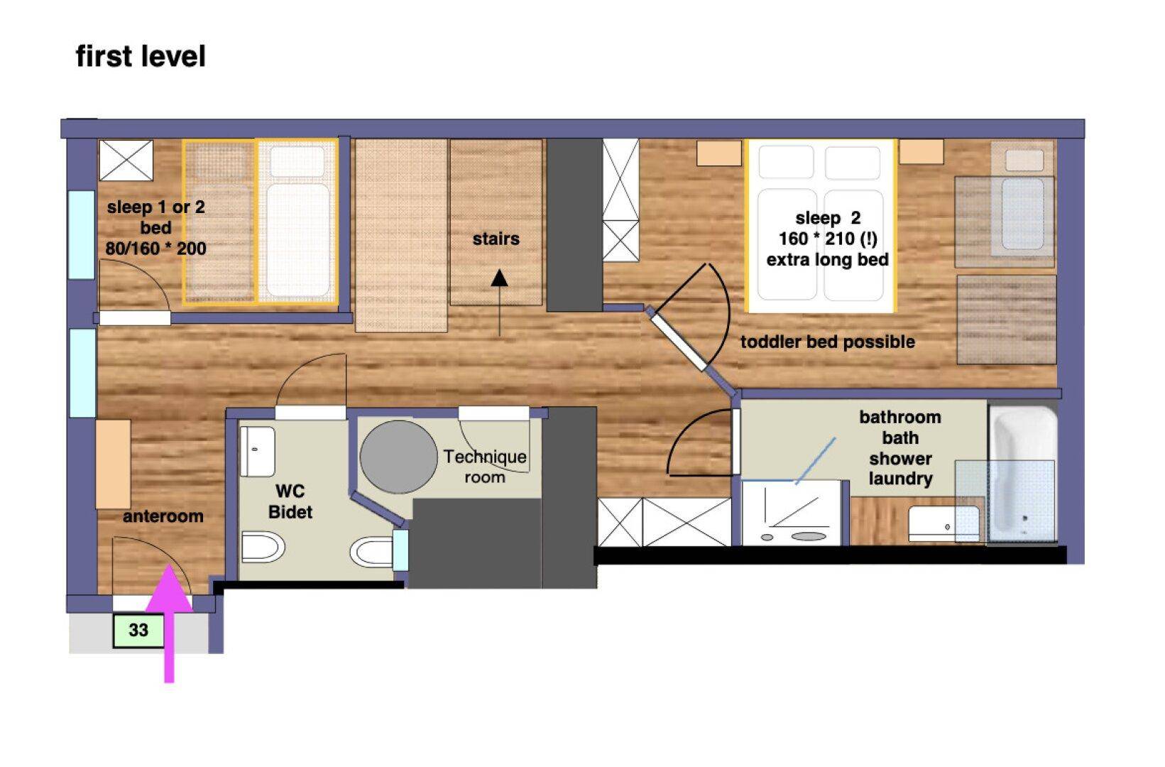
Furnished Duplex Apartment // 200 meters to U2 station Messe-Prater
2.100€
80
m²
·
3
Zimmer
Verlauf
Zuerst gesehen:
about 22 hours ago
auf
Immoscout24
Gefunden
about 22 hours ago
auf
Immoscout24
Gefunden
about 5 hours ago
auf
Willhaben
Ähnliche Anzeigen
1020 ·
Wien
987€
18€
pro m²
55
m²
·
2
Zimmer
1020 ·
Wien
1.194€
22€
pro m²
54
m²
·
2
Zimmer
1020 ·
Wien
3.100€
27€
pro m²
115
m²
·
4
Zimmer
1020 ·
Wien
2.100€
26€
pro m²
80
m²
·
3
Zimmer
1020 ·
Wien
2.095€
30€
pro m²
69
m²
·
3
Zimmer
1020 ·
Wien, 02. Bezirk, Leopoldstadt
2.200€
27€
pro m²
83
m²
·
3
Zimmer